Software > Analysesoftware, Technische Software > Raumplaner, Küchenplaner > WinSoft - die Küchenplanungssoftware
Professionelle Küchenplanungssoftware

WinSoft - die Küchenplanungssoftware

Professionelle Küchenplanungssoftware

Version:  6.2

 
 
 
 
 
 
 
 
Aktualisiert am 24. Jul 2025 durch Softronik Softwareentwicklungs GmbH
Demoversion

WinSoft - die ideale Lösung für den Küchenplaner.

Das innovative, integrierte Planungssystem bietet die folgenden Funktionen:

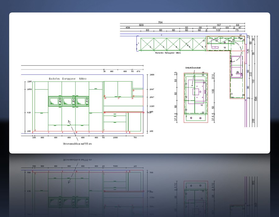
  • Erstellung von Grundrissen, Frontansichten, Installationsplänen und Perspektiven bis hin zur fotorealistischen Darstellung
  • Block- und Werteverrechnung, einfache Übernahme und Anwendung der Kernsortimente
  • Ständig aktualisierte Daten aller wichtigen Küchen- und Zubehörhersteller durch die integrierte Update-Funktion  
  • Umfangsreiches Bestellwesen
  • Rechnungsbuch mit integriertem Mahnwesen
  • Verwaltung der Herstellerdaten und Konditionen, Kundenadressen
  • Umfassendes Informations- und Statistikwesen

Der hervorragende Bedienkomfort und die intuitive Oberfläche des Programms machen die Nutzung von WinSoft für jeden einfach. 

Das System ist optional durch die von Softronik entwickelten Programmen Lager- und Kreditorenverwaltung erweiterbar.

Schnittstellen:

DeinProduktfinder
Montage-Apps
Warenwirtschaftssoftware

Zielgruppen:

Küchenstudios, Tischlerei, Küchenmöbelhersteller, Möbelhäuser

Referenzen:

unter unseren ca. 550 Anwendern sind auch die folgenden Unternehmen:

Müller Küchen H.C.M. Produktions GmbH in Altenbeken, Sokol Küchen in Hausen, Heinrich & Schleyer in Kitzingen mit Filialen, Friedrich Streb in Offenburg mit Filialen

Anbieter Kontaktdaten:
Frau Baumgarten
+49 89 743275 0
Mehr zur Software entdecken:
Informationsmaterial
URL anfordern
Online-Vorführung
Termin anfordern
Videotermin
anfragen
Software-Exposé
URL anfordern
Kontakt:
Nachricht senden

Screenshots

Funktionen (Auszug):

2D und 3D-Konstruktion
Animation
Auftragsmanagement
Benutzermanagement
Bestellmanagement
Block- und Werteverrechnung
Dachschrägen, Türen und Fenster
E-Mail-Rechnungsversand
Exportfunktionen
Formularmanagement
fotorealistische Darstellungen
Frontansichten
Grundrisserstellung
Herstellerdaten und Konditionen
Herstellerkataloge
Informationsmanagement
Installationspläne
Kalkulation
Katalogdatenbank
Kundenhistorie
Kundenverwaltung
Lagermanagement
Mahnwesen
Planungsvarianten und Perspektiven
Rechnungen
Rechnungsstellung
Rendering
Schnittstellen
Statistiken
virtuelle Begehung
Vor- und Nachkalkulation

Preis

ab 155,-
EUR
zzgl. 19% MwSt
monatlich
Vollversion

Lernen Sie die Software näher kennen! Fordern Sie einen Videotermin für eine persönliche Präsentation an!

Technische Angaben:

webbasiert:
nein
SaaS, Cloud:
nein
On-Premises (lokale Installation):
ja
multiuser-fähig (netzwerkfähig):
ja
Wartung:
im Preis enthalten
Erstinstallation (Jahr):
1998
Anzahl der Installationen:
1200
Sitz des Herstellers:
Deutschland
Schulung:
gegen Entgelt
Hotline:
im Preis enthalten
Installationssupport:
gegen Entgelt
Dokumentation:
Handbuch, Online Hilfe, Demoversion
Dialogsprache(n):
Englisch, Deutsch, Französisch
Systemvoraussetzungen:
kompatible Betriebssysteme (läuft mit):
Win 11
Win 10
Win Server
Mainframe basierend
Unix basierend
Linux basierend
Mac OS
Mobile Betriebssysteme (unterstützt):
iOS
Android
Alte kompatible Betriebssysteme:
Win 8
Win 7
Win Vista
Win XP
Win 9x/ME
Datenträger:
DVD
CD-ROM
Download

Die Software wurde von SoftGuide u.a. für folgende Projekte in Betracht gezogen:

Fliesenleger sucht Zeichnungsprogramm für die Badplanung

Projekt Nr.: 23/3073
Ausschreibung bis: Beendet

Wir sind ein norddeutscher Betrieb aus dem Fliesenlegerhandwerk und suchen ein ... mehr

Küchen- und Hausgerätegeschäft sucht CRM- bzw. Vertriebs- und Kundendienstlösung

Projekt Nr.: 20/2172
Ausschreibung bis: Beendet

Wir sind ein süddeutsches Küchen- und Hausgerätegeschäft mit ausgeprägtem Kundendienst und ... mehr

weitere Ausschreibungen