Software > Alphabetisches Programmverzeichnis > 2D Fließbilder mit Smap3D P&ID

2D Fließbilder mit Smap3D P&ID

Smap3D P&ID - die ideale Ergänzung zur optimalen Prozesskette im Anlagenbau
 
 
 
 
 
 
 
 
Aktualisiert vor mehr als zwei Jahren durch Softwareanbieter

Smap3D P&ID ist die ideale Ergänzung zur optimalen Prozesskette im Anlagenbau oder als wertvolles Instrument in der Verfahrenstechnik sofort einsetzbar. Die Software ist ein „Standalone-Produkt"  und benötigt kein zusätzliches CAD-System.

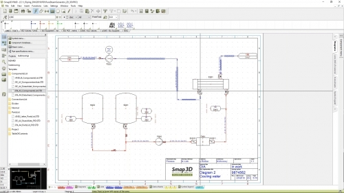
Inhalt und Darstellung von R&I Fließbildern bzw. P&ID Schemata für verfahrenstechnische Anlagen regelt für Europa die DIN EN ISO 10628. Dabei werden alle Anlagenbestandteile (Behälter, Pumpen, Armaturen usw.) nicht maßstäblich als Symbole dargestellt. Die Verbindungslinien stellen im Allgemeinen die Rohrleitungen dar. Sie werden gekennzeichnet mit einer Identifikationsnummer, Nennweite, einer Rohrklasse und weiteren Informationen.

Erzeugen, verändern,  verwalten und prüfen Sie Ihre R+I Diagramme und Schemata mit Smap3D P&ID

Mit dieser datenbankbasierenden Standalone Software sind Sie in der Lage - beginnend mit einer einzelnen Zeichnung bis hin zu einem gesamten P&ID Projekt - alle relevanten Zeichnungen, Daten, Auswertungen und Prüfungen in einer einzigen Software zu handhaben. Smap3D P&ID automatisiert und vereinfacht für Sie immer wiederkehrende Aufgaben. Alle Zeichnungsblätter, Projektblätter und Berichte sind Template basierend und so zu 100 % konfigurierbar.

Symbole und 2D Geometrie
Neben den bereits enthaltenen Symbolbibliotheken (ISO/DIN, ISA) ist es möglich, eigene bereits vorhandene Symbole (2D Geometrie im Format DXF, DWG) zu integrieren oder über den „Symbolgenerator“ einfach und schnell unternehmensspezifische Symbole neu zu erstellen. Beim Platzieren in eine Zeichnung sind Symbole skalierbar, richten sich an einem Fangraster aus und reagieren beim Einbau in eine Leitung (Linie) logisch. Das heißt, es erfolgt automatisch die notwendige Drehung des Symbols sowie die Auftrennung der Linie. „TAG Nummern“ und weitere Eigenschaften werden in einem automatischen Dialog abgefragt.

Komponenteninformationen
In der Komponentendatenbank können neben den bestehenden Komponenten beliebige Unternehmens- und Projektspezifische Komponenten angelegt werden. Sind den Komponenten die gewünschten Symbole zugewiesen, so wird beim Platzieren in eine Zeichnung nicht nur die Symbolgeometrie gehandhabt, sondern es werden die gesamten Komponenteninformationen automatisch mit ins Projekt übergeben. Die notwendige „TAG Nummerierung“ wird in einem automatischen Dialog abgefragt. Alle verfügbaren Informationen lassen sich als Beschriftungen sichtbar auf der Zeichnung „ableiten“.

Dynamische Linien (Leitungen)
Unsere dynamischen Linien vereinfachen das Zeichnen und Bearbeiten von Leitungen enorm. Die Linien reagieren dynamisch auf den Einbau oder das Entfernen von Symbolen/Komponenten, indem die Linien automatisch getrennt oder geschlossen werden. Manuelle Nacharbeiten an Linien sind somit nicht erforderlich. Mithilfe von „Griffen“ können Linien verändert (gestreckt, verkürzt, verschoben usw.) werden. Nach dem Zuweisen der Leitungseigenschaften (Leitungsnummer, Rohrklasse, DN usw.) wird aus einer gezeichneten Linie eine logische Leitung. Alle verfügbaren Informationen  lassen sich als Beschriftungen sichtbar auf der Zeichnung „ableiten“.

Prüfungen (Validierung)
Mit verfügbaren „Design Checks“ prüfen Sie die P&ID Zeichnungen auf Vollständigkeit, Plausibilität und Richtigkeit.

Auswertungen, Listen und Berichte
Aus allen in einem Projekt zusammengeführten Informationen (Symbolen, Komponenten, Leitungen usw.) können beliebige Stücklisten oder Auswertungen in Form von „Blättern“ im Projekt, aber auch „exportierte“ Dateien erzeugt werden. Unterstützte Formate beim Export sind „XML“, „Microsoft® Excel®“ und „Komma oder Spalten separierte Textdateien“. Deren Inhalten sind zu 100 % konfigurierbar, abspeicherbar und wiederverwendbar.

Ihre Nutzen auf einen Blick:

  • Zeichnen Sie jetzt auf intelligente Art und Weise Ihre Schemata.
  • Lassen Sie automatisch die TAG-Nummern erstellen und handhaben.
  • Die datenbankunterstützte Software gibt Ihnen die Flexibilität, zu jeder Zeit verschiedene Auswertungen und Reports zu erstellen: Listen (Komponenten-Liste, Mengen-Stückliste) oder andere Zusammenstellungen nach Belieben.
  • Hinterlegte Templates / Vorlagen sind stets frei definierbar und sichern Ihnen eine effiziente und automatisierte Arbeitsweise.
  • Listenfelder, Schriftfelder und weitere Informationen können nach Anforderung konfiguriert und ausgegeben werden.
  • Zeichnungen, Diagramme, Listen, Trennblätter, Inhaltsverzeichnisse, Projekt-informationen - alles in einer Projektdatei verwaltbar.
  • Bestehende Symbole und Bibliotheken sind sehr einfach implementierbar.

Gerne zeigen wir Ihnen Smap3D P&ID mit seinen Vorteilen live.

Abkürzungen:
DIN: Deutsche Institut für Normung
EN: European Norm
ISO: Internationale Organisation für Normung
R+I: Rohrleitung + Instrumente
DXF: Drawing Interchange Format
DWG: DWG-Format

Sie suchen die passende Software? Vertrauen Sie SoftGuide!

Unsere Experten finden die perfekte Lösung für Sie - unabhängig und auf dem neuesten Stand der Softwaretrends.

Screenshots

 

Funktionen (Auszug):

2D-Darstellung
3D-Darstellung
Analysefunktionen
Anlagenplanung
Ausrichtfunktion
Bemaßung
Collaboration
Datenaustausch
DXF Format
Fehlertoleranz
Geometrie
Grafische Bearbeitung
Konstruktionshilfen

Sie suchen die passende Software? Vertrauen Sie SoftGuide!

Technische Angaben:

Hersteller:
Smap3D Plant Design GmbH
webbasiert:
nein
SaaS, Cloud:
nein
On-Premises (lokale Installation):
ja
multiuser-fähig (netzwerkfähig):
ja
mandantenfähig:
nein
Wartung:
gegen Entgelt
Customizing-Option:
gegen Entgelt möglich
Sitz des Herstellers:
Deutschland
Schulung:
gegen Entgelt
Hotline:
gegen Entgelt
Installationssupport:
im Preis enthalten
Dokumentation:
Handbuch, Demoversion, Technische Dokumentation
Systemvoraussetzungen:
kompatible Betriebssysteme (läuft mit):
Win 11
Win 10
Win Server
Mainframe basierend
Unix basierend
Linux basierend
Mac OS
Mobile Betriebssysteme (unterstützt):
iOS
Android
Alte kompatible Betriebssysteme:
Win 8
Win 7
Datenträger:
DVD
CD-ROM
Download
Flash-Speicher

Alternativen

2D Fließbilder mit Smap3D P&ID
3D Anlagenbau- und Fabrikplanungs-Software | M4 PLANT
IronCAD Design Collaboration Suite 2025
HiCAD - das leistungsstarke 3D-CAD-System
ThouVis
3D CAD Creo Design Essentials (ehemals Pro/ENGINEER Wildfire)
TT-PLANT - 3D CAD Lösung für die Rohrleitungsplanung im Anlagenbau
Hexagon - CADWorx Bundle (CADWorx Plant, P&ID and Design Review)
EASYPLOT
TL-PIPE
3D-Fabriksimulation mit Visual Components Simulationssoftware und DUALIS Add-ons
hheader
Aquachem - Software für Wasseraufbereitung + Planung V_10.6
CONVAL
WinBohr/WinSchicht/WinPump
ROBERT KNOWS - Inventarverwaltung / Verträge / Lizenzen / Helpdesk
2D Fließbilder mit Smap3D P&ID
3D Anlagenbau- und Fabrikplanungs-Software | M4 PLANT
IronCAD Design Collaboration Suite 2025
HiCAD - das leistungsstarke 3D-CAD-System
ThouVis
3D CAD Creo Design Essentials (ehemals Pro/ENGINEER Wildfire)
TT-PLANT - 3D CAD Lösung für die Rohrleitungsplanung im Anlagenbau
Hexagon - CADWorx Bundle (CADWorx Plant, P&ID and Design Review)
EASYPLOT
TL-PIPE
3D-Fabriksimulation mit Visual Components Simulationssoftware und DUALIS Add-ons
hheader
Aquachem - Software für Wasseraufbereitung + Planung V_10.6
CONVAL
WinBohr/WinSchicht/WinPump
ROBERT KNOWS - Inventarverwaltung / Verträge / Lizenzen / Helpdesk
Kurzinfo
Smap3D P&ID - die ideale Ergänzung zur optimalen Prozesskette im Anlagenbau
3D CAD Software für den Anlagenbau und die Fabrikplanung
Modulares, hybrides 2D/3D-CAD-System für alle Branchen mit ACIS- und Parasolid-Kernel
2D-/3D-CAD-System, integrierte Branchenfunktionen, freies und parametrisches Mod.
Das leistungsstarke Kreativwerkzeug zum Erstellen hochwertiger Zeichnungen
Integrierte parametrische und/oder explizite 3D-Software für CAD/CAM/CAE
Flexible Rohrleitungsplanung für Engineering und Dienstleistungsbetriebe
Komplettlösung für die Anlagenplanung
Interaktiver Entwurf von Rohrleitungs-Isometrien mit 3-D Darstellung
Ein Programm für die Rohrleitungskonstruktion
Planen Sie Ihre Fabrik der Zukunft: einfach, virtuell und leistungsstark
Berechnungstool für Planung und Inbetriebnahme im Bereich des Anlagenbaus
Software zur Planung, Auslegung und Dimensionierung von Wasseraufbereitungs-Anlagen
Berechnungs- und Optimierungsprogramm für MSR-, Rohrleitungs- und Verfahrenstechnik
Bohrprofile (DIN 4023); Schichtenverzeichnisse (ISO 22475-1); Auswertung von Pumpversuchen
Inventarisierung, Netzwerkmanagement, Lizenz- und Vertragsmanagement, Helpdesk, uvm.
multiuser-fähig (netzwerkfähig)
ja
ja
ja
ja
ja
ja
ja
ja
ja
ja
ja
nein
ja
ja
ja
ja
Mandantenfähig
nein
ja
ja
ja
nein
ja
nein
ja
ja
ja
nein
nein
ja
nein
ja
ja
Kompatibel mit
 
 
 
 
 
 
 
 
 
 
 
 
 
 
 
 
 
 
 
 
 
 
 
 
 
 
 
 
 
 
 
 
 
 
 
 
 
 
 
 
 
 
 
 
 
 
 
 
 
 
 
 
 
 
 
 
 
 
 
 
 
 
 
 
 
 
 
 
 
 
 
 
 
 
 
 
 
 
 
 
 
 
 
 
 
 
 
 
 
 
 
 
 
 
 
 
 
 
 
 
 
 
 
 
 
 
 
 
 
 
 
 
 
 
 
 
 
 
 
 
 
 
 
 
 
 
 
 
Schnittstellen
3D PDF
BIM
DWG
DXF
FBX
HSF
IFC
IGES
PDF
STEP
STL
VRML
3D-DXF/DSTV
3dm
3ds
ACIS
Autodesk® Revit®
AVI
Basic
BMP
CATIA
catpart
catproduct
CAXA
COB
Creo
DWG
DXF
EPS
exb
EXR
GIF
Granite One
HDR
Hoops Stream Format HSF
HSF
icb
icc
ics
IFC
IGES
Inventor
JPG
JT
Kodak Photo CD
Microsoft Excel
model
OBJ
OOC
Parasolid
PCX
PDF
PNG
Point Cloud
POV
prj
Pro/E
Pro/Engineer
prt
PTS
PTX
RAW
Rhino
Romulus
SAT
scn
SketchUp SKP
SKP
SLA
Solid Designer
SolidEdge
SolidWorks
STEP
STL
stp
TGA
TIF
tmd
UG NX
Unigraphics UG NX
Visual Basic
Visual Basic Text
VRML
WRL
x_t
xmt
XYZ
.NET API
CAD
Python API
CSV Import/ Export
LDAP
Zusätzliche Soft- und Hardwareanforderungen
Arbeitsspeicher: 8 GB RAM Festplatte: 3 GB Grafikkarte: 3D-kompatible Grafikkarte DirectX 10.1+ kompatibel 1GB oder höher Bildschirmauflösung Empfohlen: 1920 x 1080 Pixel (Min. 1400 x 900 Pixel)
Mit Windows 10 Professional 64 Bit erzielen Sie die beste Performance. Standard-Grafikkarten von ATI oder NVIDIA reichen in der Regel aus, da OpenGL, OpenGL2 und DirectX unterstützt werden. Für Gelegenheitsanwender eignet sich bereits die Intel HD Graphics recht gut. Für große Baugruppen, Animation, Rendering und VR sind dedizierte Grafikkarten erforderlich. XEON-Prozessoren sind aus unserer Sicht nicht erforderlich. Siehe auch: http://www.ironcad.com/system-requirements/
Bildschirmauflösung ab 1280*768
64-Bit! Autodesk Produkte ab 2012! 2-Schirmlösung für TT-PLANT empfohlen!
Prozessor: Intel i7-8xxx Prozessor oder gleichwertig; Speicher: 8GB oder mehr; Festplatte: 3GB verfügbarem Speicher; Grafikkarte: Nvidia GPU mit mindestens 4GB zugehörigem Speicher, z.B. GeForce GTX 1080 oder besser; Grafikauflösung: 1920 x 1080 (Full HD) oder höher; Maus: mit 3 Tasten (links, mitte, rechts); 64-bit Betriebssystem: Windows 10
Die Software ist als ausführbare Datei mit zugehöriger Ordnerstruktur verfügbar. Die Software selbst kann u.a. über einen Websitelink aus dem Internet heruntergeladen werden, ist aber nur in Verbindung mit einem Hardware-Dongle vollumfänglich nutzbar. Die Software kann ohne Installationsroutine direkt gestartet und verwendet werden und ist somit portabel.
Datenbanksystem Microsoft SQL-Server oder Oracle ROBERT KNOWS muss nicht auf den einzelnen Clients installiert werden. Es genügt die Dateien in eine Verzeichnis zu kopieren und die Freigabe den Anwendern zur Verfügung zu stellen.
Dialogsprache(n)
Englisch, Deutsch, Französisch
Englisch, Deutsch
Englisch, Deutsch
Deutsch
Englisch, Deutsch
Englisch, Deutsch, Französisch
Deutsch
Deutsch
Englisch, Deutsch
Englisch
Deutsch
Englisch, Deutsch
Deutsch
Englisch, Deutsch
Dokumentation
Handbuch
Online Hilfe
Demoversion
Technische Dokumentation
Handbuch
Online Hilfe
Demoversion
Technische Dokumentation
Handbuch
Online Hilfe
Demoversion
Technische Dokumentation
Handbuch
Online Hilfe
Demoversion
Technische Dokumentation
Handbuch
Online Hilfe
Demoversion
Technische Dokumentation
Handbuch
Online Hilfe
Demoversion
Technische Dokumentation
Handbuch
Online Hilfe
Demoversion
Technische Dokumentation
Handbuch
Online Hilfe
Demoversion
Technische Dokumentation
Handbuch
Online Hilfe
Demoversion
Technische Dokumentation
Handbuch
Online Hilfe
Demoversion
Technische Dokumentation
Handbuch
Online Hilfe
Demoversion
Technische Dokumentation
Handbuch
Online Hilfe
Demoversion
Technische Dokumentation
Handbuch
Online Hilfe
Demoversion
Technische Dokumentation
Handbuch
Online Hilfe
Demoversion
Technische Dokumentation
Handbuch
Online Hilfe
Demoversion
Technische Dokumentation
Handbuch
Online Hilfe
Demoversion
Technische Dokumentation
Anzahl der Installationen
>300.000
>1000
zwischen 10 und 99
4000
> 100
>5500
1.200
Erstinstallation (Jahr)
1995
2004
1996
2003
1995
1989
1994
2000
Funktionen
13/13
13/13
13/13
13/13
12/13
12/13
10/13
10/13
9/13
7/13
4/13
2/13
2/13
0/13
0/13
0/13
Weitere Alternativen zu 2D Fließbilder mit Smap3D P&ID vergleichen